Альфа 3

Альфа 3 109,61 м²
Характеристики
  • Общая площадь: 109,61 м2
  • Площадь застройки: 123,85 м2
  • 2
    Санузла
  • 3
    Спальни

Выберите технологию

Выберите комплектацию

8019800 руб.
8619800 руб.
Цена
8 019 800 руб.
Цены в вашем регионе могут отличаться от представленных на сайте

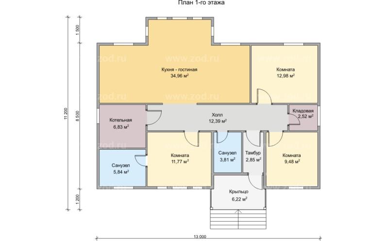
Одноэтажный дом – выбор для тех, кто не хочет подниматься и спускаться по лестницам. Когда все помещения расположены на одном уровне, это удобно для семей, где есть маленькие дети, пожилые люди. Альфа 3 привлекает выразительной внешностью и удобной планировкой. В доме предусмотрено все для комфортного проживания большой семьи: три изолированные друг от друга спальни, гарантирующие покой домочадцам, две ванных комнаты, котельная, в которой можно без труда разместить прачечную, а также кладовая – залог порядка в доме. Огромная совмещенная со столовой гостиная, которая благодаря большому количеству окон всегда будет наполнена светом, станет излюбленным местом сбора всей семьи.

Характеристики
  • Общая площадь: 109,61 м2
  • Площадь застройки: 123,85 м2
4 сезона
4 сезона +
Фундамент в подарок Свайно-винтовой на глубину промерзания Фундамент в подарок Свайный забивной железобетонный ниже глубины промерзания
Пол 1-го этажа Настил пола - 24 мм. Утепление - 150 мм Пол 1-го этажа Доска - 35 мм. Утепление - 150 мм
Стены 1-го этажа Толщина стены 146 мм. Покрытие биозащитным составом Стены 1-го этажа Толщина стены 146 мм. Покрытие биозащитным составом
Кровля Профлист C-20 (оцинкованный) Кровля Металлочерепица
Окна ПВХ Окна ПВХ
Двери Деревянные, глухие Двери Внутренние - деревянные, глухие. Входная - металлическая усиленная.
Обработка огнебиозащитой для дерева в 2 слоя Обработка огнебиозащитой для дерева в 2 слоя
Скидки на дополнительные опции 5% Скидки на дополнительные опции 10%
8 019 800 руб.
8 619 800 руб.
* действителен при покупке в комплектации "Теплый дом+", "Аляска", "4 сезона", "4 сезона+" и "Зимняя"
Более подробную информацию уточняйте у менеджеров по телефону +7 495 445-90-85 или на наших выставочных площадках.
Характеристики
  • Общая площадь: 109,61 м2
  • Площадь застройки: 123,85 м2
  • 2
    Санузла
  • 3
    Спальни

Выберите технологию

Выберите комплектацию

Цена
8 019 800 руб.
Цены в вашем регионе могут отличаться от представленных на сайте

Отзывы о коттеджах

Елена, дом "Уэльс" 12 Мая 2023
Хочу выразить свою благодарность от нашей семьи менеджеру Суховой Светлане Львовне, в 2021 году мы обратились в «Зодчий» . 
Прошли немало строительных компаний, но Светлана  Львовна сразу расположила к себе профессиональным подходом и очень грамотно подвела нас к определенному проекту, который подходил именно нам. Она смогла нас убедить , что мы построим дом «нашей мечты» именно в «Зодчем». 
Было очень легко решать с ней непростые вопросы, которые мы бы не смогли решить самостоятельно. 
Уже почти два года мы живем в нашем доме. И даже по истечении этого времени , я могу позвонить и проконсультироваться в интересующих меня вопросах, всегда приветлива и со знаем своего дела ответит на все мои вопросы. 
Спасибо за наш дом. 
Хочу также отметить  архитектора  Поверину Надежду  Владимировну- профессионал своего дела. Огромное спасибо ей в участии нашего  проекта.
Нина, "Балчуг" 19 Мая 2023
Спасибо Суховой Светлане Львове за помощь в выборе и строительстве дома и бани. А также за доброе и внимательно отношение к своим клиентам. Так же большое спасибо строительной бригаде за быструю и качественную работу
Гражданин М., зимний дом Велес 30 Июля 2015
По результатам проживания в осеннее-зимнее время, дом показал себя с наилучшей стороны по энергосбережению,практически при низких температурах не требует значительных энергоресурсов,эксплуатация дешевле 2-х комнатной квартиры, что не столь важно в нынешнее время.Собран дом качественно и быстро, что за 1 год эксплуатации подтвердилось на 100%! Спасибо!
Обратный звонок
* заполните обязательно